Velkommen til

Riise Consulting

Tegnetjenester for bolig- og interiørprosjekter, kommunale søknader, produktdesign og mer!

Jeg har lang fartstid og mye erfaring med 2D- og 3D-tegninger.

Vertikal strek

Alt innen tekniske tegninger

Jeg tilbyr tekniske tegninger og visuelle løsninger som gjør det enklere å planlegge, bygge og dokumentere prosjekter på en trygg og effektiv måte. Med erfaring innen både 2D- og 3D-tegning av interiør og eksteriør leverer jeg alt fra materiale til byggesøknader til detaljerte produksjonstegninger for CAD/CAM. Jeg hjelper også med oversettelse av teknisk dokumentasjon fra engelsk til norsk, slik at informasjonen blir tydelig, korrekt og klar for videre bruk. Målet mitt er å gi deg nøyaktige tegninger og dokumenter som forenkler prosessen – uansett prosjektets størrelse.

Les mer om meg
Vertikal strek

Jeg kan hjelpe med

Teknisk tegning av bygg

2D/3D byggtegning

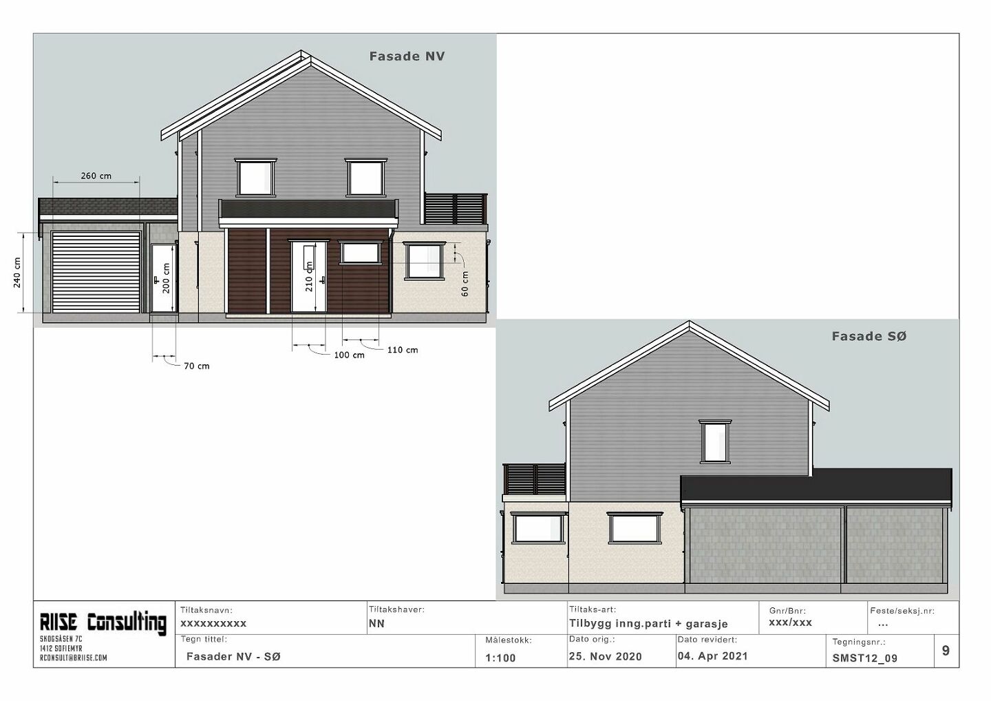
Eksteriør/interiør tegninger. 3D animasjoner - for bedre visuell forståelse av prosjektet. For byggesøk leverer vi plan, snitt, fasader, målsatt, i målestokk 1:100 som kommunene krever, situasjonskart i målestokk 1:500, og 3D oversiktsbilder.

Ta en titt på bilder her

Teknisk tegning av bygg

Kommunale byggesøknader

Via samarbeidende Form Arkitekter AS tar vi hele søkeprosessen: Tegninger + alle nødvendige dokumenter: Nabovarsel, Ansvarlig søker, Ferdigattest, Dispensasjoner, etc.

Nicole og Sofie i Form Arkitekter AS er dyktige og nøyaktige, og har rykte på seg for å få søknaden godkjent på første forsøk.

Teknisk tegning av bygg

Teknisk tegning

Tegninger for produksjon/dokumentasjon, 2D/3D.  Filer for CAD/CAM produksjon kan også leveres.

Last ned "Badebalje_v3.pdf"

Illustrasjon av sjekkliste

Teknisk dokumentasjon

Oversettelse av teknisk dokumentasjon. "Fornorskning" av engelske/amerikanske tekniske dokumenter og produktkataloger. Min bakgrunn er fra elektronikk og audiovisuell bransje, og er derfor spesielt kvalifisert for litteratur innen disse fagene.

Last ned "Produktkatalog eksempel.pdf"

Vertikal strek

Om Riise Consulting

Riise Consulting leverer tekniske tegnetjenester, hovedsakelig innen bygg/bolig.  Foretaket  er et enkeltmannsforetak drevet av Bjørnar Riise.

Via samarbeid med tilknyttede arkitekter gjør vi også hele den kommunale søkeprosessen, inkludert nabovarsel, ansvarlig søker, dispensasjoner, etc.

Jobber også litt innen produktdesign, og er generelt åpen også for andre typer tegneoppdrag.

Jeg har lave kostnader (hjemmekontor) og dermed lave priser. Jeg gjør meg flid med jobbene, og har mange gode tilbakemeldinger.

Kvalitetsarbeid til rimelige priser - ta kontakt med ditt prosjekt!

Vertikal strek
Bilde av mann

Bjørnar Riise

Les noen av mine omtaler

Jeg har enda flere omtaler på mittanbud.no og anbudstorget.no, ta en titt!

Endring på fasade

God kommunikasjon underveis, og flott sluttprodukt.

Ivar, Vestnes - 10/11/2025

Tegne tegninger til byggesøknad om takløft

God kommunikasjon underveis og god kvalitet.

Helena, Nesttun - 25/09/2025

Tegne nye tegninger av gammelt hus

Leverte som avtalt, pris og produkt.

Mariann, Drammen - 07/09/2025

Kontakt meg i dag!

Riise Consulting

Trippestadveien 22C, 1812 ASKIM
Org.nr: 912 399 192

hCaptcha